1. Accueil
  2. Aménagement pour particuliers
  3. Permis de construire et DP
  4. Permis de construire pour une villa à Vescovato, conforme au PLU
Retour

Permis de construire pour une villa à Vescovato, conforme au PLU

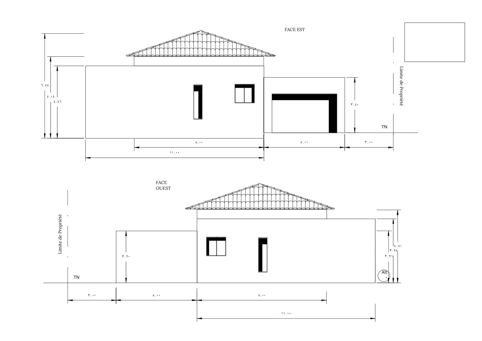
Maison de pleins pied à Vescovato selon le PLU

Construire une maison à Vescovato en Haute-Corse est un projet qui doit allier esthétique contemporaine et respect du Plan Local d’Urbanisme. La Maison By L, experte en décoration et architecture d’intérieur, accompagne les particuliers et professionnels dans la réalisation de leurs plans et dossiers administratifs afin de garantir l’acceptation du permis de construire en mairie.

Conception architecturale moderne et respect du terrain naturel

Le projet présenté met en valeur une villa élégante avec toit terrasse inaccessible et toiture en tuiles, s’intégrant harmonieusement au paysage corse. Les façades Nord et Sud révèlent de grandes baies vitrées favorisant luminosité et confort intérieur, tout en respectant :

  • Les hauteurs réglementaires adaptées au terrain naturel (altimétries détaillées).

  • Les distances aux limites de propriété conformes aux prescriptions locales.

  • Une conception sur mesure, pensée pour offrir un design moderne et fonctionnel.

Avec La Maison By L, chaque projet est conçu pour concilier esthétique haut de gamme et réglementation en vigueur.

Le PLU de Vescovato 2025 : un cadre strict à respecter

Le PLU de Vescovato 2025 fixe les règles d’urbanisme qui conditionnent l’acceptation des permis de construire : zonage constructible (U ou AU), hauteur maximale, recul par rapport aux limites séparatives, intégration paysagère.

Dans un contexte de forte pression démographique, la commune a choisi de maîtriser son urbanisation en rendant plus de 80 hectares aux agriculteurs, afin de préserver la plaine et limiter l’artificialisation des sols. Ce choix implique que chaque construction doit être parfaitement justifiée et intégrée dans son environnement.

Grâce à son expertise, La Maison By L assure une lecture précise du PLU et adapte chaque plan aux contraintes locales, garantissant ainsi un dépôt de dossier conforme et solide auprès de la mairie.

Question fréquente : Comment réussir son permis de construire à Vescovato ?

Comment être sûr que mon permis de construire sera accepté en Haute-Corse ?

La réponse réside dans un dossier clair, détaillé et réglementairement conforme.

Les plans doivent respecter le zonage du PLU, les hauteurs autorisées, les distances imposées et tenir compte des priorités locales en matière de préservation agricole. En vous appuyant sur La Maison By L, vous avez l’assurance d’un projet validé plus rapidement et sans risque de refus.

Contactez La Maison By L pour votre projet en Haute-Corse

Vous souhaitez déposer un permis de construire à Vescovato, Bastia ou sur la Côte d’Azur (Cannes, Menton, Marseille) ?

Faites confiance à La Maison By L pour un accompagnement complet :

06 95 53 47 18
contact@lamaisonbyl.fr
Avec La Maison By L, votre projet de villa devient réalité : moderne, élégante et surtout conforme au PLU de Vescovato.
Nous écrire
Les champs indiqués par un astérisque (*) sont obligatoires
À découvrir
Salle de bain moderne et lumineuse avec baignoire îlot, douche à l'italienne et décoration épurée, parfaite pour un intérieur contemporain.

Aménagement d'une salle d'eau en travertin pour un client à Bastia

Salle de bain moderne en travertin à Bastia : LaMaisonBy L conçoit une salle d’eau élégante et lumineuse avec douche à l’italienne, baignoire îlot et matériaux naturels pour un intérieur contemporain et apaisant.
En savoir plus
aménagement intérieur Vescovato Décoration intérieure élégante et lumineuse – Design naturel et épuré

Aménagement intérieur sur mesure avec choix de la décoration pour une villa à Vescovato en Corse

Aménagement d'une villa neuve à Vescovato - Style scandinave ethnique.Décoration sur mesure pour une villa destinée à la location annuelle.
En savoir plus
Chambre décorée style bohème chic pour location saisonnière

Décoration d’un logement locatif ou Airbnb pour augmenter son attractivité touristique en 2B Haute-Corse

Soigner la décoration de son logement locatif ou Airbnb en Haute-Corse 2B est un levier essentiel pour accroître son attractivité touristique. Des choix pertinents valorisent le bien, séduisent les voyageurs et favorisent les réservations, tout en s’adaptant aux spécificités du marché corse. P...
En savoir plus
Contactez-nous
Besoin de plus d'informations ? Nous sommes à votre disposition pour toute demande
LaMaisonByL Rénovation intérieur extérieur
LaMaisonByL vous accompagne dans votre changement de vie. Architecte intérieur