1. Accueil
  2. Aménagement pour particuliers
  3. Permis de construire et DP
  4. Architecture contemporaine à Miomu : un projet de villa entre relief, lumière et Méditerranée
Retour

Architecture contemporaine à Miomu : un projet de villa entre relief, lumière et Méditerranée

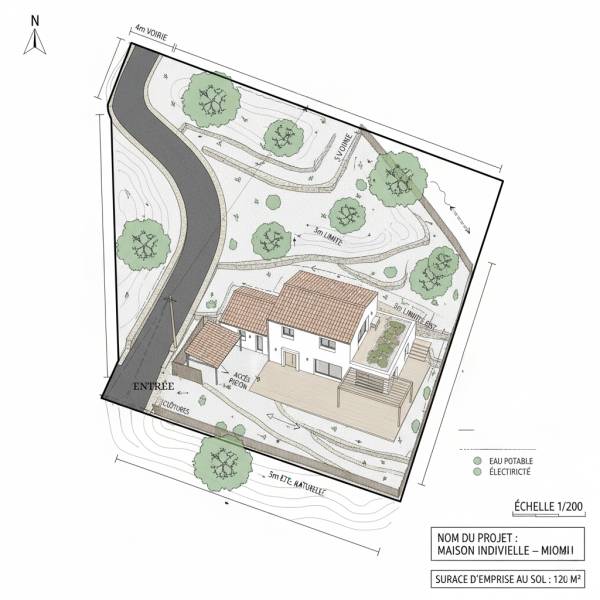
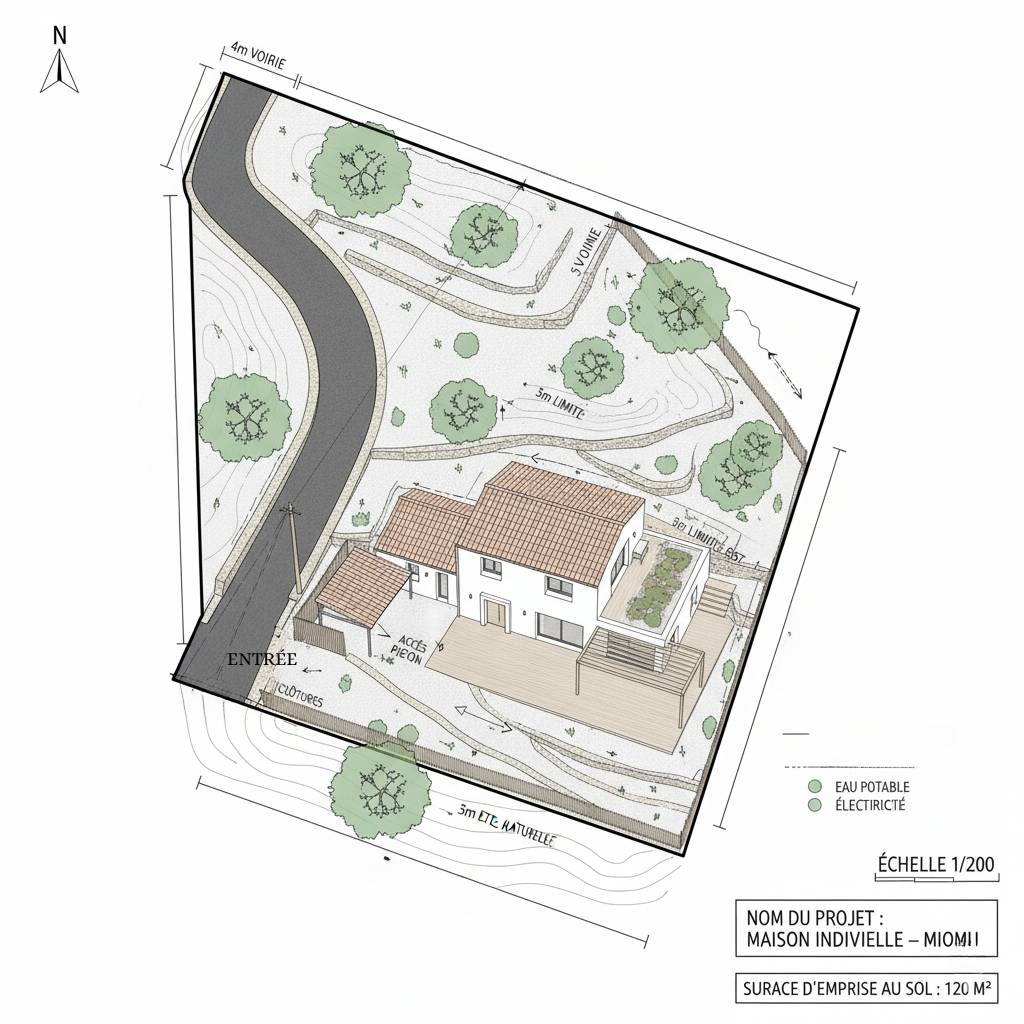
Concevoir une villa contemporaine à Miomu en Corse : projet architectural et dépôt de permis de construire en Haute-Corse

Miomu, un territoire d’exception entre patrimoine et architecture maîtrisée

Implanté sur les hauteurs du Cap Corse, Miomu, hameau de Santa-Maria-di-Lota, bénéficie d’un cadre naturel préservé, entre mer, restanques en pierre sèche et végétation méditerranéenne. Ce secteur résidentiel recherché impose une architecture discrète, pensée pour dialoguer avec le paysage. Toute construction à Miomu doit respecter l’identité du site, tant sur le plan volumétrique que dans le choix des matériaux, conformément aux prescriptions du PLU de la commune.

Un projet de villa conçu dans le respect du PLU de Miomu

Cette villa contemporaine a été imaginée en parfaite conformité avec les règles d’urbanisme locales. Le PLU de Santa-Maria-di-Lota impose notamment une implantation adaptée à la pente, des volumes fractionnés, ainsi qu’une hauteur limitée afin de préserver les vues et l’harmonie du site.
Le projet s’organise sur deux niveaux, avec une implantation en retrait des limites séparatives et une emprise au sol maîtrisée. Les façades aux teintes claires, la toiture en tuiles traditionnelles et les menuiseries aux tons naturels répondent aux exigences architecturales du PLU, tout en affirmant une écriture contemporaine élégante. Les larges ouvertures ont été positionnées de manière à limiter l’impact visuel depuis l’espace public et à valoriser les vues sur la végétation environnante.

Permis de construire à Miomu : rigueur réglementaire et intégration paysagère

La dépose du permis de construire à Miomu nécessite une analyse précise des règles de zonage, des coefficients d’implantation, du traitement des clôtures et de l’intégration paysagère. La Maison By L a assuré la réalisation des plans 2D réglementaires, des visuels d’insertion paysagère et des perspectives 3D, éléments essentiels pour démontrer la cohérence du projet avec le PLU et faciliter l’instruction du dossier par les services d’urbanisme.

Peut-on construire une villa sur un terrain en pente avec vue mer à Miomu ?

Construire une villa sur un terrain en pente à Miomu est possible, à condition de respecter strictement les règles du PLU et les contraintes paysagères propres aux zones naturelles du Cap Corse. Le règlement impose une implantation adaptée à la topographie, souvent en restanques ou en volumes décalés, afin de limiter les terrassements et l’impact visuel depuis la mer. Les hauteurs sont encadrées, les emprises au sol maîtrisées et les vues doivent être préservées, tant pour le projet que pour l’environnement existant. À Miomu, l’intégration paysagère est un élément clé du permis de construire : traitement des façades, choix des matériaux, teintes et insertion dans la végétation sont analysés avec attention par les services d’urbanisme.

La Maison By L, expertise locale en permis de construire en Corse

Basée en Corse, à Marseille et sur la Côte d’Azur, La Maison By L accompagne les projets de construction et de rénovation haut de gamme, en intégrant dès la conception les contraintes du PLU et l’identité du territoire. Chaque permis de construire est pensé comme un projet architectural à part entière, alliant qualité française, conception sur mesure et respect du paysage corse.

Vous avez un projet de villa à Miomu, à Bastia ou en Haute-Corse ? Contactez La Maison By L pour un accompagnement personnalisé et sécurisé, de l’étude réglementaire à la dépose du permis de construire.

Nous écrire
Les champs indiqués par un astérisque (*) sont obligatoires
À découvrir
Projet architectural La Maison By L pour construction à Prunete en Corse

Construire une maison neuve divisible en deux habitations avec jardins privés à Prunete en Corse

Construisez une maison neuve divisible en deux logements avec jardins privés à Prunete. Projet sur mesure conforme au PLU avec La Maison By L.
En savoir plus
Villa Casa L’Alivetu neuve à divisée en 4 appartements T3 de 67 m² chacun

Déposer un permis de construire pour une villa neuve divisée en 4 appartements T3 haut de gamme à Bastia en Corse

Déposez votre permis pour la villa Casa L’Alivetu à Bastia : 4 appartements T3 neufs sur terrain nu avec accompagnement complet La Maison By L.
En savoir plus
Permis de construire accepté pour un aménagement professionnel, dossier monté par LaMaisonByL.

Extension d'une maison avec création d’appartement et modification de toiture à Quertiolu en Haute-Corse

Réalisez une extension de maison à Quertiolu en Corse avec La Maison By L : création d’appartement, modification de toiture et respect du PLU.
En savoir plus
Contactez-nous
Besoin de plus d'informations ? Nous sommes à votre disposition pour toute demande
LaMaisonByL Rénovation intérieur extérieur
LaMaisonByL vous accompagne dans votre changement de vie. Architecte intérieur